E-mail: ascari@ascari.pt | Telef.: +351 225 025 520 (custo chamada para rede fixa nacional) | Telem.: +351 935 508 585 (custo chamada para rede móvel nacional) | PORTO
Capa de manual Haynes para motor Ford Diesel 1.6 e 1.8 com ilustração do motor
  • Capa de manual Haynes para motor Ford Diesel 1.6 e 1.8 com ilustração do motor
  • Capa de manual Haynes para manutenção de veículos Ford Diesel com imagens e texto explicativo
  • Diagrama técnico de catalisador e sistema de combustível do automóvel com texto e legendas.
  • Página de manual técnico de motor com imagens e texto em inglês sobre manutenção de correia dentada.
  • Manual técnico com diagramas de peças de motor e instruções passo a passo.
  • Tabela técnica de sobreposição de motor 1.6 litros com medidas e especificações
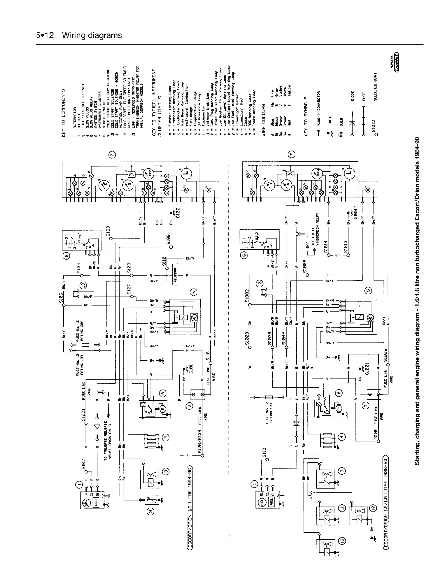
  • Esquema elétrico técnico detalhado em preto e branco com texto em inglês.

Ford 1.6 & 1.8L D 1984-96

39,00 €
IVA incluído.
Compre este produto e ganhe 36 Pontos!

3 unidades em stock | SKU: 9781859602249

Manual técnico editado pela Haynes para os motores de 1608cc e 1753cc Diesel.

Este manual refere apenas o motor e não a viatura

(PUB 05/1996, autor: Matthew Minter, idioma: Inglês, 208 págs, capa dura, 21X27 cms, fotos ).

Marca Haynes (Auto)
Características